мобильная версия

Four Seasons Resort Chiang Mai 5* 5 звезд

Four Seasons Chiang Mai - курорт с традиционной архитектурой в стиле Ланны, пышной тропической обстановкой и номерами, обеспечивающими полную конфиденциальность. Планировка курорта напоминает тайскую деревню с павильонами, окружающими действующую рисовую ферму.

Курорт расположен на 13 гектарах (32 акра) обширных ландшафтных садов и рисовых террас с двумя небольшими озерами, прудами с лилиями, водопадами и действующей рисовой фермой. 

К услугам гостей 2 открытых бассейна, спа-центр, 2 теннисных корта, занятия йогой, тайским боксом и кулинарная школа для взрослых и детей, где рассказывают и учат готовить блюда северного Таиланда.

Принадлежит к сети отелей Four Seasons (Four Seasons Hotel Bangkok at Chao Phraya River, Four Seasons Koh Samui). 

Забронировать
Город вылета
Период
.. - ..
Кол-во дней
1 2 3 4 5 6 7
8 9 10 11 12 13 14
15 16 17 18 19 20 21
22 23 24 25 26 27 28
29 30 31
Питание
Кол-во людей
2 взрослых
  • до 1 года
  • 1 год
  • 2 года
  • 3 года
  • 4 года
  • 5 лет
  • 6 лет
  • 7 лет
  • 8 лет
  • 9 лет
  • 10 лет
  • 11 лет
  • 12 лет
  • 13 лет
  • 14 лет
Дата Тип комнаты Разм. Дни Питание Цена за номер Отель Эконом
Расположение
  • В долине Mae Rim, с видом на горный массив  Doi Suthep;
  • в 22 км от центра Чиангмая;
  • в 23 км от от международного аэропорта Чиангмая.
Питание

Тип питания: завтраки.

Рестораны и бары: 

  • ресторан-бар Khao (классические местные блюда). Завтрак: 07:00 –10:30, обед: 10:30 – 17:00, послеполуденный чай: 13:00 – 17:00, ужин: 17:00 – 22:00, последний заказ в 21:45, часы работы бара: 17:00 – 22:00. Рассчитан на 56 посадочных мест внутри, 52 места снаружи, 12 мест снаружи под крышей;
  • ресторан North рассчитан на 52 посадочных мест (блюда приготовленные на гриле), обед: 11:30 – 17:00, ужин: 17:00 – 22:00, последний заказ в 21:45;
  • ресторан Rim Tai Kitchen (кулинарный мастер-класс северной тайской кухни, изысканный ужин) вместимостью на 104 места;
  • лаундж-бар Ratree Bar and Lounge (лёгкие блюда, закуски, напитки), часы работы: 11:30 – 22:00.
Номерной фонд

В отеле 98 номеров:

  • Garden Pavilion (70 м², макс. 3 чел).
    Двуспальная кровать размера king-size или две односпальные кровати, ванная комната с ванной и душем, тайская беседка на открытом воздухе, вид на сад, см.план номера;
  • Upper Garden Pavilion (70 м², макс. 3 чел.).
    На верхних этажах среди пышных тропических садов, двуспальная кровать размера king-size или две односпальные кровати, ванная комната с ванной и душем, тайская беседка на открытом воздухе с кушеткой, вид на сад, см.план номера;
  • Rice Terrace Pavilion (70 м², макс. 3 чел.).
    На нижнем этаже, двуспальная кровать размера king-size или две односпальные кровати, ванная комната с ванной и душем, отдельное жилое пространство на открытом воздухе с кушеткой в ​​тайском стиле, вид на  рисовые поля курорта, см.план номера;
  • Pool Villa (403 м², макс. 2 чел.).
    Двуспальная кровать king-size, ванная комната с ванной и душем на открытом воздухе, терраса, персональный бассейн с зоной джакузи;  тайская беседка - Sala, вид на сад, см.план номера;
  • Upper Rice Terrace Pavilion (70 м², макс. 3 чел.).
    На верхних этажах, двуспальная кровать размера «king-size» или две односпальные кровати, высокие сводчатые потолки, ванная комната с ванной и душем, личное жилое пространство на открытом воздухе, панорамный вид на горный хребет Сутхеп и рисовые поля курорта, см.план номера;
  • 1 Bedroom Family Residence (244 м², макс. 2+2).
    2 спальни: двуспальная кровать king-size, отдельная  2 ванные комнаты (одна с ванной, вторая только с душем), услуги батлера,  отдельные гостиная комната с обеденной зоной, небольшая кухня, вид на горы и сад, дополнительно: приветственный коктейль или моктейль, ежедневно пополняемый мини-бар (без алкоголя), детские принадлежности, глажка до четырех предметов одежды на номер, на 30 минут больше продолжительность на все процедуры в спа, см.план номера;
  • 1 Bedroom Spa Residence (244 м², макс. 3 чел.).
    На северо-западной стороне курорта, двуспальная кровать king-size, ванная комната, услуги батлера, вид на горы и местность вокруг, дополнительно: приветственный коктейль или моктейль, ежедневно пополняемый мини-бар (без алкоголя), детские принадлежности, глажка до четырех предметов одежды на номер, на 30 минут больше продолжительность на все процедуры в спа;
  • 1 Bedroom Plunge Pool Residence (284 м², макс. 2+2.).
    На северо-западной стороне курорта, двуспальная кровать king-size, 2 ванные комнаты: одна с ванной и другая с душем только, отдельная гостиная комната с обеденной зоной, услуги батлера, небольшой персональный бассейн размера  3 x 4 м, вид на сад и горы, дополнительно: приветственный коктейль или моктейль, ежедневно пополняемый мини-бар (без алкоголя), детские принадлежности, глажка до четырех предметов одежды на номер, на 30 минут больше продолжительность на все процедуры в спа;
  • 2 Bedroom Residence (350 м², макс. 6 или 4+2).
    На северо-западной стороне курорта рядом с бассейном резиденции, 2 спальни: двуспальная кровать размера king-size и две односпальные кровати, 2 ванные комнаты, гостиная и обеденная зона, вид на горы и сад, услуги батлера, дополнительно: приветственный коктейль или моктейль, ежедневно пополняемый мини-бар (без алкоголя), детские принадлежности, глажка до четырех предметов одежды на номер, на 30 минут больше продолжительность на все процедуры в спа;
  • 2 Bedroom Plunge Pool Residence (390 м², макс. 6 или 4+2).
    На северо-западной стороне курорта, 2 спальни: двуспальная кровать размера king-size и две односпальные кровати, 2 ванные комнаты, веранда, небольшой персональный бассейн размера  3 x 4 м,  вид на сад и горы, услуги батлера, дополнительно: приветственный коктейль или моктейль, ежедневно пополняемый мини-бар (без алкоголя), детские принадлежности, глажка до четырех предметов одежды на номер, на 30 минут больше продолжительность на все процедуры в спа;
  • 2 Bedroom Grand Residence Pool Villa (487 м², макс. 6 или 4+2).
    Двухэтажная резиденция на восточной стороне курорта, 2 спальни: двуспальная кровать размера king-size и две односпальные кровати, гостиная комната с обеденной зоной, 2 ванные комнаты, гостевой туалет, душ под открытым небом, терраса, персональный бассейн, балкон, панорамный вид на горы и местность вокруг, услуги батлера, дополнительно: приветственный коктейль или моктейль, ежедневно пополняемый мини-бар (без алкоголя), детские принадлежности, глажка до четырех предметов одежды на номер, на 30 минут больше продолжительность на все процедуры в спа;
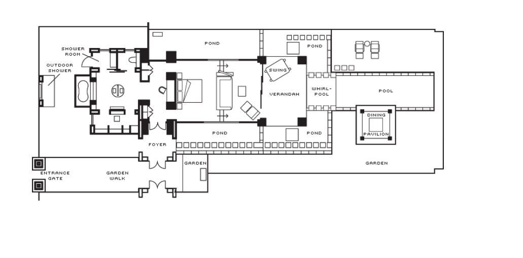
  • 3 Bedroom Family Residence (524 м², макс. 9 или 6+3).
    На северо-западной стороне курорта, 3 спальни: 2 двуспальные кровати king-size и 2 односпальные кровати, гостиная комната с обеденной зоной, кухня, 3 ванные комнаты с гидромассажной ванной, библиотека, услуги батлера, дополнительно: приветственный коктейль или моктейль, ежедневно пополняемый мини-бар (без алкоголя), детские принадлежности, глажка до четырех предметов одежды на номер, на 30 минут больше продолжительность на все процедуры в спа, см.план номера;
  • 3 Bedroom Grand Residence Pool Villa (803 м², макс. 9 или 6+3).
    Двухэтажная резиденция в восточной части курорта, 3 спальни: 2 двуспальные кровати king-size и 2 односпальные кровати, 3 ванные комнаты, гостевой туалет, душ под открытым небом, отдельная гостиная комната с обеденной зоной, кухня, персональный бассейн (размера 6 х 17 м), джакузи под открытым небом (размера 3,2 х 3,2 м), частный сад, панорамный вид на горы и на местность вокруг, услуги батлера, дополнительно: приветственный коктейль или моктейль, ежедневно пополняемый мини-бар (без алкоголя), детские принадлежности, глажка до четырех предметов одежды на номер, на 30 минут больше продолжительность на все процедуры в спа, см.план номера;
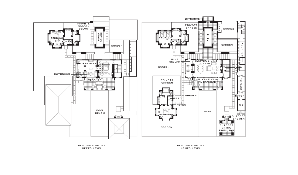
  • 4 Bedroom Grand Residence Pool Villa (855 м², макс. 12 чел., включая до 11 детей).
    Двухуровневые здания с отдельным входом, окруженные пышными садами в восточной части курорта, 4 спальни: 3 двуспальные кровати king-size и 2 односпальные кровати, просторная столовая на 8 мест и гостиная комната, а также кухня и винная комната 4 ванные комнаты, гостевой туалет, душ под открытым небом, персональный бассейн (6 х 17 м), джакузи (3,2 х 3,2 м), парковка на 2 автомобиля, панорамный вид на горы и сад, услуги батлера, дополнительно: приветственный коктейль или моктейль, ежедневно пополняемый мини-бар (без алкоголя), детские принадлежности, глажка до четырех предметов одежды на номер, на 30 минут больше продолжительность на все процедуры в спа, см.план номера.

В номерах:  Wi-Fi,  банные принадлежности, телефон с голосовой почтой, телевизор со спутниковыми каналами, сейф, утюг и гладильная доска, сейф, зеркало для макияжа, набор для приготовления чая/кофе, фен.

 

Инфраструктура
  • 2 открытых бассейна, а также горячие и холодные гидромассажные ванны у рисовых полей;
  • спа-центр;
  • 3 ресторана;
  • 2 бара;
  • 2 теннисных корта (платно);
  • 9 площадок для проведения различных мероприятий, вместимостью от 20 до 300 гостей.

 

 

Спорт и развлечения
  • Тренажёрный зал;
  • персональные тренировки (платно);
  • йога, пилатес;
  • уроки кулинарии (платно);
  • тайский бокс (платно);
  • теннис (ракетки, мячи - бесплатно);
  • уроки тенниса (платно);
  • уроки тайского языка;
  • маршруты для пеших и велосипедных прогулок;
  • прокат велосипедов (платно).
 
 
Спа/лечение

Спа-центр, часы работы: 09:00 - 20:00 (вдохновлен северным тайским храмом в стиле древнего королевства Ланна):

  • 7 процедурных кабинетов;
  • 5 сьютов с отдельными парными с травяной ароматерапией и 2 сьюта с двойным тропическим душем;
  • массаж;
  • уход за лицом;
  • уход за телом;
  • косметические процедуры;
  • сауна;
  • паровая баня.
Для детей
  • Детский клуб, часы работы: 09:00 - 18:00;
  • ежедневная программа;
  • уроки кулинарии, гончарного мастерства (платно);
  • услуги няни (запрос, платно);
  • детская кроватка (запрос);
  • детская коляска (запрос, данная услуга может быть платной).
 
 
Особенности

 

Four Seasons Hotels and Resorts - это история постоянных инноваций, значительного расширения и целеустремленной приверженности высочайшим стандартам. Канадская компания на протяжении 60 лет трансформировала индустрию гостеприимства, сочетая индивидуальную, искреннюю заботу с непоколебимым стремлением к совершенству. В процессе работы Four Seasons переосмыслили понятие роскоши для современного путешественника.

Наши рекомендации
для семейного, респектабельного, спокойного и романтического отдыха.
В отеле
  • Wi-Fi;
  • химчистка/прачечная (платно);
  • ежедневная уборка в номерах;
  • услуга косьержа;
  • организация свадебной церемонии (платно);
  • организация приватного завтрака или ужина (платно);
  • обслуживание в номерах (платно).
 
 
 

Важно!
Информация, представленная на сайте, может быть неполной. Отель оставляет за собой право в любое время без уведомления туроператора вносить изменения и обновления в инфраструктуру отеля, номерной фонд, концепцию питания и перечень дополнительных услуг без изменения качества оказания услуг. Актуальную информацию по той или иной услуге в отеле необходимо уточнять при бронировании.

Вместе с этим отелем просматривали
Anantara Chiang Mai Resort Таиланд Чиангмай
Four Seasons Resort Chiang Mai Таиланд Чиангмай
Добавить в избранное
Поделиться:
Туры в отель от -
Искать туры
Заявка на расчёт тура
Имя *
ИНН (для агентов*)
E-mail *
Телефон *
Направление *
Даты поездки *
Запрос *
Бюджет

даю согласие на обработку персональных данных, с политикой конфиденциальности ознакомлен
* - Поля обязательные к заполнению