мобильная версия

Juffair Boulevard Hotel & Suites 4* 4 звезды

Отель Juffair Boulevard Hotel & Suites расположен в оживленном районе Джаффейр и примыкает к торговому центру. Этот ультрасовременный отель сочетает в себе лучшее как в сегменте отелей, так и в сегменте апартаментов. К услугам гостей открытый бассейн, спа-центр, тренажёрный зал, ночной клуб.

 

Расположение
  • В оживлённом районе Джаффейр;
  • в 4 км от Национального музея Бахрейна;
  • в 8 км от международного Выставочного центра;
  • в 9 км от международного аэропорта Бахрейна.
Питание

Бары и рестораны:

  • ресторан Amor открыт на завтрак, обед и ужин;
  • бар в ночном клубе Base Club, часы работы: 18:00-02:00;
  • ресторан-лаунж Iguana Lounge, часы работы: 12:00-02:00;
  • кафе в лобби The Grab Lounge, часы работы: 12:00-02:00;
  • ресторан ливанской кухни Samara Fusion, часы работы: 12:00-02:00.
Номерной фонд

В отеле 201 номер:

  • 40 номеров Deluxe King (34,35 м², макс. 2+2).
    Двуспальная кровать размера 180х200 см, ванная комната с душем, план номера;
  • 43 номера Deluxe Twin (45,95 м², макс. 2+2).
    2 отдельные кровати размера 120х200 см, ванная комната с душем, план номера;
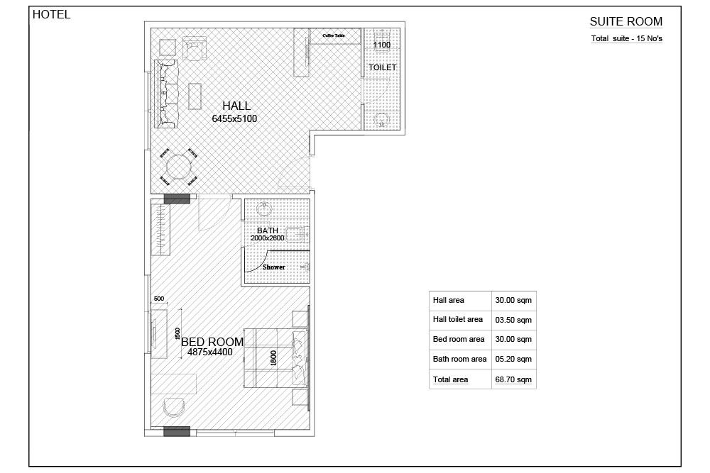
  • 8 номеров Executive Suite (68,7 м², макс. 2+2).
    Спальня с двуспальной кроватью размера 180х200 см, отдельная гостиная комната с диваном и обеденной зоной, ванная комната с душем, гостевой туалет, план номера;
  • 7 номеров Deluxe Suite (68,7 м², макс. 2+2).
    Спальня с двуспальной кроватью размера 180х200 см, отдельная гостиная комната с диваном и обеденной зоной, ванная комната с душем, гостевой туалет, план номера;
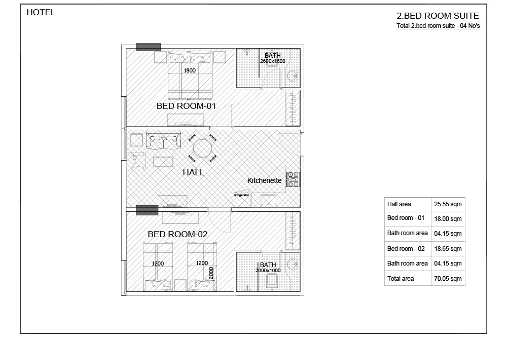
  • 4 номера Junior Suite (70,05 м², макс. 4 чел.).
    2 спальни: двуспальная кровать размера 180х200 см, 2 односпальные кровати 120х200 см, отдельная гостиная комната с диваном,  обеденным столом и мини-кухней (холодильник, плита), 2 ванные комнаты с душем, план номера;
  • 66 номеров 1 Bedroom Apartment (68,7 м², макс. 3 или 2+2).
    Спальня с двуспальной кроватью размера 180х200 см, отдельная гостиная комната с диваном, обеденным столом и кухней, ванная комната с душем, план номера;
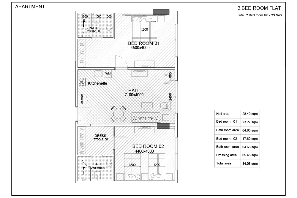
  • 33 номера 2 Bedroom Apartments (84,08 м², макс. 5 чел.).
    2 спальни: двуспальная кровать размера 180х200 см, 2 односпальные кровати 120х200 см, отдельная гостиная комната с диваном,  обеденным столом и кухней, 2 ванные комнаты с душем, гардеробная, план номера.

В номерах: мини-холодильник, шкаф, утюг и гладильная доска, сейф, зеркало для макияжа, фен, банные принадлежности, Wi-Fi, набор для приготовления чая/кофе, питьевая бутилированная вода, телевизор, телефон, центральное кондиционирование, письменный стол; на кухне в апартаментах: стиральная машина, холодильник, плита, духовка, микроволновая печь, кухонные принадлежности.

Инфраструктура
  • Открытый бассейн;
  • терраса для загара;
  • спа-центр;
  • ночной клуб Base Club вместимостью на 2500 мест, часы работы: 18:00-02:00;
  • 1 комната для переговоров;
  • 3 ресторана;
  • 1 кафе;
  • 1 бар.
Спорт и развлечения
  • Тренажёрный зал;
  • выступление DJ и артистов в ночном клубе (платно).
Спа/лечение

Спа-центр:

  • массаж;
  • ногтевой салон.
Наши рекомендации
для длительного пребывания (есть апартаменты с кухней), для молодёжного отдыха, для шопинга
В отеле
  • Wi-Fi;
  • бизнес-центр (платно);
  • парковка;
  • услуги консьержа;
  • круглосуточная стойка регистрации;
  • обслуживание в номерах (платно);
  • хранение багажа;
  • ежедневная уборка в номерах;
  • прачечная (платно);
  • услуга «звонок-будильник».

Важно!
Информация, представленная на сайте, может быть неполной. Отель оставляет за собой право в любое время без уведомления туроператора вносить изменения и обновления в инфраструктуру отеля, номерной фонд, концепцию питания и перечень дополнительных услуг без изменения качества оказания услуг. Актуальную информацию по той или иной услуге в отеле необходимо уточнять при бронировании.

Вместе с этим отелем просматривали
Arman Hotel Bahrain Бахрейн Джаффейр
Juffair Boulevard Hotel & Suites Бахрейн Джаффейр
Atiram Premier Hotel Бахрейн Джаффейр
Добавить в избранное
Поделиться:
Особенности отеля
  • Проживание в номерах или апартаментах
Заявка на расчёт тура
Имя *
ИНН (для агентов*)
E-mail *
Телефон *
Направление *
Даты поездки *
Запрос *
Бюджет

даю согласие на обработку персональных данных, с политикой конфиденциальности ознакомлен
* - Поля обязательные к заполнению